当前位置: 首页> 问答> 在上海“法租界”晃荡,你也许会碰见这家有趣的咖啡馆
  • 在上海“法租界”晃荡,你也许会碰见这家有趣的咖啡馆
  • 2022-05-14 20:03:42

  • 传统意义上被称为法租界的地方,也许是上海最有魅力的部分之一。

    上海陕西南路一带最近在拆迁,不少有趣的小店全都关掉了。其中包括一家有名的地下酒吧 Flask,它开在一个自动可乐贩售机的后面,营造一种神秘、复古的气氛。不过,这家店的老板已将生意转移到襄阳北路和富民路上,他们在两地分别开设了酒吧 Botanist 和咖啡馆 Fumi,并邀请同一位意大利设计师 Alberto Caiola 设计室内。


    陕西南路上的酒吧 Flask


    与之前隐秘的气氛不同,这两家店直接临街开设,可以通过落地玻璃看到内外。咖啡馆在靠近巨鹿路很近的地方,来往的人很多,都会透过玻璃窗注意到咖啡店里的情况。


    咖啡馆 Fumi


    Fumi 是一个黑白相间的简洁风格,最初令人注意到的是波浪形的黑色天花板,从室内一直延伸到室外,构成了一个小的屋檐,很有雕塑感。设计者想象天花板是将咖啡的芳香气味转变成出来的,让咖啡的香气飘在整个室内并流出到外面去。


    室内三面墙都刷白,与黑色的天花板形成反差,不会显得压抑。墙面故意留有砖块砌出来的纹路,提醒这里租界的历史。


    其中一面墙挂上银色的咖啡壶,壶内的光源射在白色的墙面上,再映射到咖啡壶本身,有了深浅的光影变化,好像是跳跃的咖啡壶,配合着波浪形的天花板,有一种流动的音乐感。



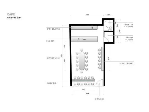
    咖啡馆实际有 33 平方米,室内放有三组桌椅,靠墙的吧台、放在中间的圆桌和临街的一组。这里更适合聚会聊天。其中临街的玻璃是可以在天气好的时候折上去的,让人可以两两相对而坐,就像是坐在户外。当人坐在喧嚣的老街和现代的咖啡馆之间时,一定感觉很奇妙。


    剩下两组都采用与咖啡壶上类似的镜面材料,回应工业感的气氛。粗糙的有历史感的墙面和光滑的现代的桌椅也构成了一种对比,恰如这条街道折射出的新旧对比。


    折叠玻璃窗



    Botanist 酒吧更强调一种科幻感,灯光顺着黑色框架而设,像是一段数字编码。设计在墙上植入绿色植物来强调健康的概念。




    图片来自 archdaily、designboom、albertocaiola



    2016 红点奖揭晓,中国内地有 6 件产品得到最高奖项



    这座小房子,让你看到创意工作者一天的生活



    带上它们,过个优雅的下雨天|这个设计了不起